mesut toraman
+90 (546) 792 27 52
+90 (531) 606 01 32
Mesut Toraman | İzmir - Selçuk Belediyesi Kültür ve Gençlik Merkezi Projesi

İzmir - Selçuk Belediyesi Kültür ve Gençlik Merkezi Projesi



İzmir - Selçuk Belediyesi Kültür ve Gençlik Merkezi Projesi

"Selçuk Belediyesi Kültür ve Gençlik Merkezi Mimari Projesi Yarışması" alanı, İzmir Selçuk ilçe sınırları içerisinde şehrin kuzey ve güneyini birbirine bağlayan noktada konumlanmaktadır.

Selçuk, Türkiye'nin batısında Ege Bölgesi'nde, İzmir iline bağlı ve güneyinde yer alan, kuzey ve doğudan İzmir'in, güney ve batıdan Aydın'ın ilçeleri ile sınırlı, kent yaşamına dair ipuçlarına M.Ö. 2000'lerde rastlanılan, pek çok medeniyete ev sahipliği yapımı sahip olduğu farklı medeniyetlerden kalan ve kent kültürünün temelini oluşturan yapısal zenginliği ile dünyada az rastlanan bir yerleşim dokusuna sahiptir. 

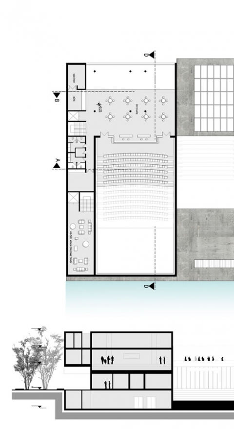
"Selçuk Belediyesi Kültür ve Gençlik Merkezi Mimari Projesi Yarışması" alanı, İzmir Selçuk ilçe sınırları içerisinde şehrin kuzey ve güneyini birbirine bağlayan İzmir-Aydın çevre yolunun doğusunda ve çevre yoluna paralel uzanan Kubilay Caddesi üzerinde konumlanmaktadır. Kent merkezinden başlayarak güneye doğru uzanan Kubilay Caddesi, proje alanına taşıt ve yaya ulaşımı sağlayan önemli bir arterdir. Ağırlıklı olarak az katlı konut binaları ile çevrelenen tasarım alanında; hemen doğusundan başlayarak güney-doğu yönündeki yürüme mesafesinde konumlu eğitim yapıları, rekreasyon alanları gibi kamu kullanım odaklı hacimlerin varlığı kent izleri anlamında dikkat çekmektedir.

İlçe içindeki boşluklara referans veren kütle amfi, saçak ve üst örtüyle ana arter olan Kubilay Caddesine bakarken; kent balkonu, avlu ve platform gibi mimari elemanlarla çevredeki konut dokusu içerisindeki potansiyeli açık alanlara bakmaktadır. Yapı zemin ve 1. kat seviyesinden boşaltmalar yapılarak çevreyle ilişkilenme potansiyeli arttırıldı. Restoran, sinema, atölye, gösteri salonu gibi kamusallığı arttıran etkinlik mekânları peyzaj ve üst platformlara açılarak alanın kamusallığını arttırmıştır. Zeminde oluşturulan peyzaj üst kotlara da taşınarak yapı içerisinde yeşil dokulu etkinlik alanları oluşturuldu.

Avlular ve diğer boşluklar tasarlanırken buranın gelip geçilen bir yer değil de aksine duraklanan bir takım açık alan etkinliklerine ve oturma-dinlenme gibi işlevlere olanak sağlandı.